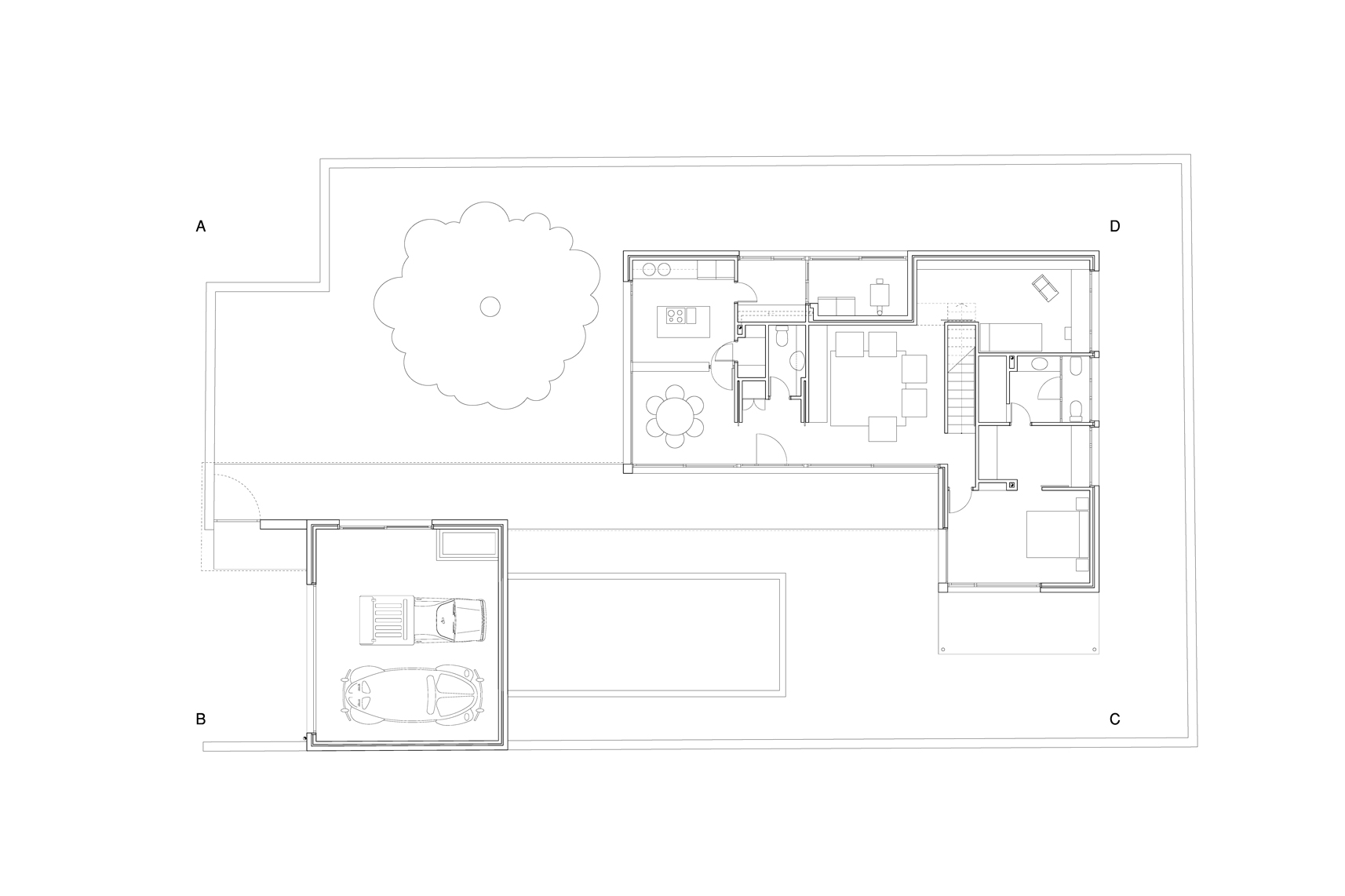
• PLANTA  BAJA
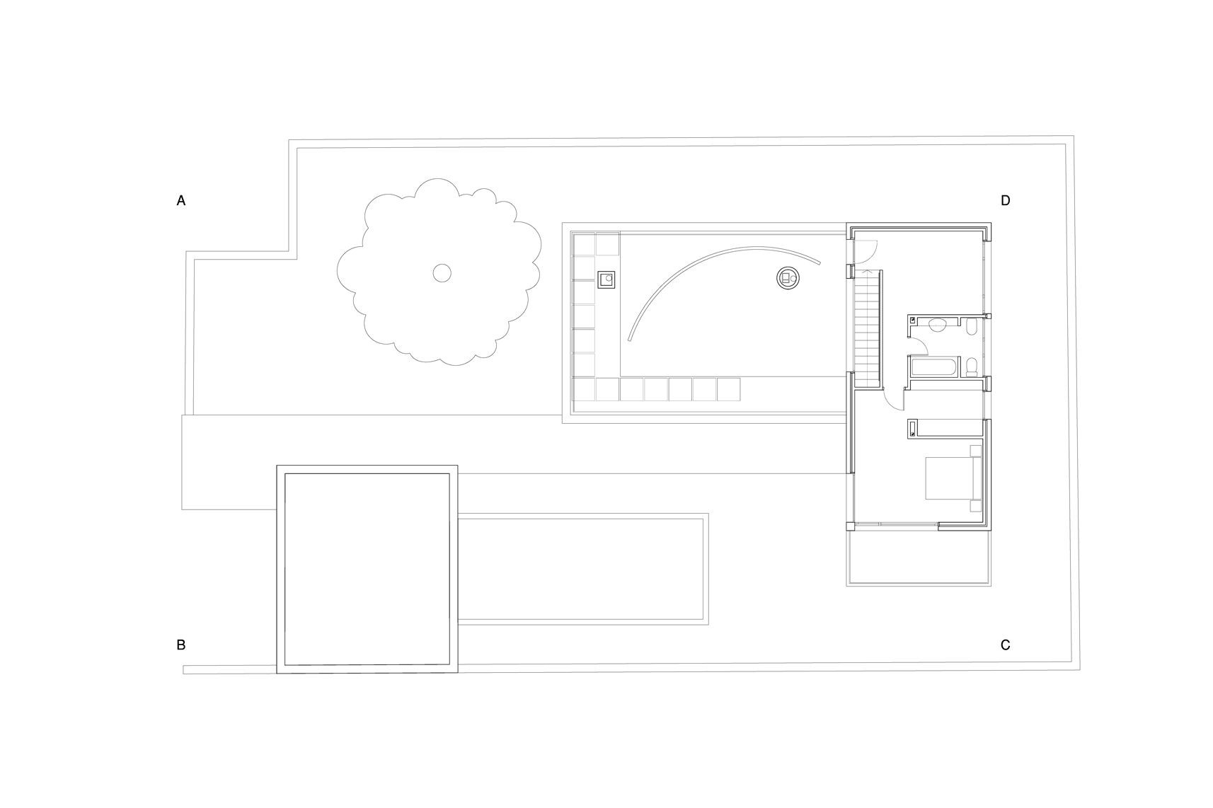
  • PLANTA PRIMERA
  • ALZADO AB
  • ALZADO BC
  • ALZADO CD
  • ALZADO DA
  • Estudio de Arquitectura Zaballa y Carballas
  • Estudio
    Vivienda unifamiliar
    Vivienda colectiva
    Reforma - Interiorismo
    Otros
    Sugerencias
  • 2017 NIGRAN - 1 VIV
    2016 HIO - 9 VIV. (6)
    2016 MOAÑA - 4 VIV.
    2012 MOS - 1 VIV.
    2012 PONTEVEDRA - 11 VPA
    2011 PONTEVEDRA - 16 VPA
    2010 CARRAL - 35 VPO
    2009 CANGAS - 4 VIV.
    2007 BAIONA - 4 VIV.
    2006 O PORRIÑO - 1 VIV.

  • A MALLADOURA